加固动态

  • 植筋加固的应用及锚固计算

    当前位置:首页 » 悍马加固材料资讯中心 » 技术篇 » 植筋加固的应用及锚固计算植筋加固的应用及锚固计算文章出处:悍马加固材料人气:146发表时间:2018-05-22 15:47【大 中 小】一、植筋技术的优点由于在钢筋混凝土结构上植筋加固已不必再进行大量的开凿挖洞,而只需在植筋部位钻孔后,利用植筋加固剂作为钢筋与混凝土的粘合剂就能保证钢筋与混凝土的良好粘结,因而减轻对原有结构构件的损伤,也减

    2019-08-16 lojg

  • 桥梁加固工程如何使用预应力碳纤维碳板加固法

    随之時间的发展趋势,当初基本建设的工程项目,现如今有为数不少都早已出現了难题,而这种难题许多是因为那时候的技术性不合格、规范不高造成的设计方案不科学、工程施工不科学,也由于这种难题造成工程建筑的负载工作能力不够、脆化速率和浸蚀速率迅速,应对这种难题,老建筑只有遭遇动迁再建的运势,可是公路桥梁有其多样性,不能承受随意拆的瞎折腾,因此基础选用预应力复合材料碳板结构加固的方法来维护。在公路桥梁工程建筑中

    2019-08-16 lojg

  • 新增楼板加固

    工程情况简介:一联排别墅小区,设计阶段对于小区有一二次改造工程,即在层高较高的基础上,主体结构施工完成后进行二次改造增加楼板,使其从平层变跃层,达到增加建筑面积的效果,在预留的空间内通过前期主体结构施工时预留在“墙”“梁”内的预埋件与后加楼板钢筋连接的方式对后加楼板的钢筋进行加固,现原预制埋件因为定位不准确,导致更改施工方案为植筋,但因工程量较大,植筋费用过高,现考虑更改施工方案

    2019-08-15

  • 外粘钢板加固和外粘包钢加固,具体用在哪方面呢?

    于刚入行的新手来说,粘钢加固和灌钢加固是非常类似的加固方法,都会用到钢板和 粘钢胶 。而且加固后的效果,新手也很难分辨。不仅这两种加固方法加固后呈现的方式不同,它们的用处也不同,用在的地方也不一样。今天小编就跟大家说说这个外粘钢板加固和外包型钢加固两种方法都是用在哪些项目的加固上。   外粘钢板加固   而外粘钢板加固

    2019-08-15

  • 房屋加固工程施工有施工标准吗?

    在对房屋进行加固施工之前,需要先对房屋及其周边的建筑物进行勘测,对房屋现有的结构和问题有所了解,要清楚房屋的缺陷和损伤问题,根据现场勘测得到的数据结果来分析房屋的受力状态,为下一步的加固设计做好准备。在开展房屋加固工作之前要先鉴定后加固,隐患问题都会在后期加固施工中体现出来,为了避免事故的发生,要对待加固的房屋进行现场勘测。在对房屋加固设计时,需要考虑到房屋现在的受力状况和承重特点,对房屋的整体结

    2019-08-15

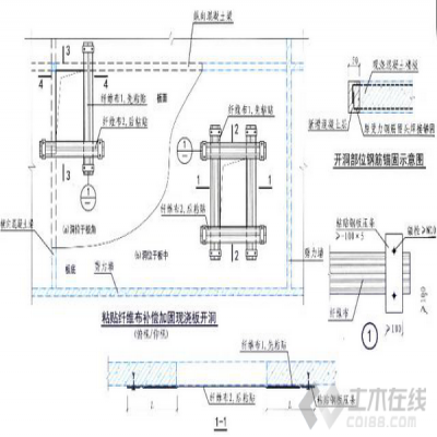
  • 楼板开洞及加固方式详解

    在楼板开洞以后,要根据现场的实际情况选择正确的加固方案    在现实的生产与生活中,经常会涉及到结构的框架结构0,这样就避免不了会在楼板上进行开洞。楼板开洞后局部切断了原有传力路径和配筋,一方面促使洞口周边板的内力增大,会造成应力集中,另一方面板筋减少,承载力降低,需要根据实际情况进行有效的加固。    当垂直于板受力

    2019-08-15

  • 你的房屋为何要加固?

    基建事业的迅猛发展,为我们带来便利的同时,也带来了新的问题。由于混凝土结构的抗拉强度低、受环境影响因素大等特点,导致在服役的过程中容易出现裂缝、腐蚀等病害。结构加固,治理结构病害的专业医生,能有效治理、改善结构病害,近年来正在越来越多的结构中发挥作用。事实上,结构加固与我们并非遥不可及,我们平时经过的桥梁,与我们生活有直接关系的学校、医院等,已经有很多经历过加固改造。而我们所居住的房屋,许多都处于

    2019-08-15

  • 房屋抗震加固改造施工过程中需要考虑到那些问题?

    抗震加固方法的选用      对混凝士房屋抗震加固改造时,应根据该房屋抗震鉴定的结论,针对结构存在的具体问题,综合选择.上述的1种或多种加固手段,来达到预期的加固目标.      1、当房屋抗霞承载力不能满足要求时,单向框架宜加固成双向框架,或采取加强楼、屋盖整体性且同时增设抗震墙、抗震支撑等抗侧力构件的措施.框架柱配筋不符合鉴定要求时,

    2019-08-15